Planning submitted for Solar Park to power approximately 3551 family homes in Dorset.
Planning submitted for Solar Park to power approximately 3551 family homes in Dorset
British Solar Renewables (BSR Energy), has submitted plans for a solar park (Higher Wraxall Solar Park) on land at Wraxall Manor Farm, Wraxall, Dorset, DT2 0HW. BSR work with landowners, environmental specialists and planning authorities to develop, build, operate and manage solar parks. The developer ran a programme of public consultation to find out what local residents thought about the proposals.
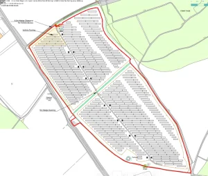
It is estimated that the generating station would have an installed capacity of up to 14MWp for distribution to the National Grid. This is the equivalent to the annual electrical needs of approximately 3551 family homes.
The need for increased renewable energy is urgent and is in a context of declared national and local climate emergencies. The UK Government has set an ambitious target of reducing emissions by 78% by 2035. Renewable electricity generation, including solar, will play a key role in meeting this target. The anticipated CO2 displacement of the proposed site is around 2,968 tonnes per annum.
A number of technical assessments have been carried out with regard to the suitability of the site for the proposed development, including Landscape and Visual Appraisal, Heritage Desk Based Assessment, Preliminary Ecological Appraisal, Agricultural Land Classification and Transport Appraisal and have subsequently informed the layout and helped design a scheme that is sensitive towards and compatible with the local landscape and environment.
The site is located within an AONB, and a full environmental statement was produced highlighting a range of protections and betterments the development will secure. The proposed solar park at Higher Wraxall offers the opportunity for ecological enhancements including wildflower and wild bird seed grasslands and breeding boxes for bats and birds. A Bronze Age round barrow lies at the Site’s southwest boundary. Historic England were consulted as part of the pre-app process. Revisions have been made to the proposed solar layout, drawing the array away from the Bronze Age round barrow and creating an offset of 20m.
The site biodiversity net gain assessment has calculated up to a 179% gain in habitats units and 16% gain in the hedgerow habitat units demonstrating the positive impact of the proposals. Existing hedgerows will also be grown out to contain and screen the solar arrays and no public rights of way will be closed during or after construction.
